文库 工程类投标方案 拆除工程

综合保税区公寓塔吊拆卸专项施工投标方案.docx

DOCX   61页   下载856   2024-08-03   浏览13   收藏64   点赞250   评分-   18547字   10.00
温馨提示:当前文档最多只能预览 15 页,若文档总页数超出了 15 页,请下载原文档以浏览全部内容。
综合保税区公寓塔吊拆卸专项施工投标方案.docx 第1页
综合保税区公寓塔吊拆卸专项施工投标方案.docx 第2页
综合保税区公寓塔吊拆卸专项施工投标方案.docx 第3页
综合保税区公寓塔吊拆卸专项施工投标方案.docx 第4页
综合保税区公寓塔吊拆卸专项施工投标方案.docx 第5页
综合保税区公寓塔吊拆卸专项施工投标方案.docx 第6页
综合保税区公寓塔吊拆卸专项施工投标方案.docx 第7页
综合保税区公寓塔吊拆卸专项施工投标方案.docx 第8页
综合保税区公寓塔吊拆卸专项施工投标方案.docx 第9页
综合保税区公寓塔吊拆卸专项施工投标方案.docx 第10页
综合保税区公寓塔吊拆卸专项施工投标方案.docx 第11页
综合保税区公寓塔吊拆卸专项施工投标方案.docx 第12页
综合保税区公寓塔吊拆卸专项施工投标方案.docx 第13页
综合保税区公寓塔吊拆卸专项施工投标方案.docx 第14页
综合保税区公寓塔吊拆卸专项施工投标方案.docx 第15页
剩余46页未读, 下载浏览全部
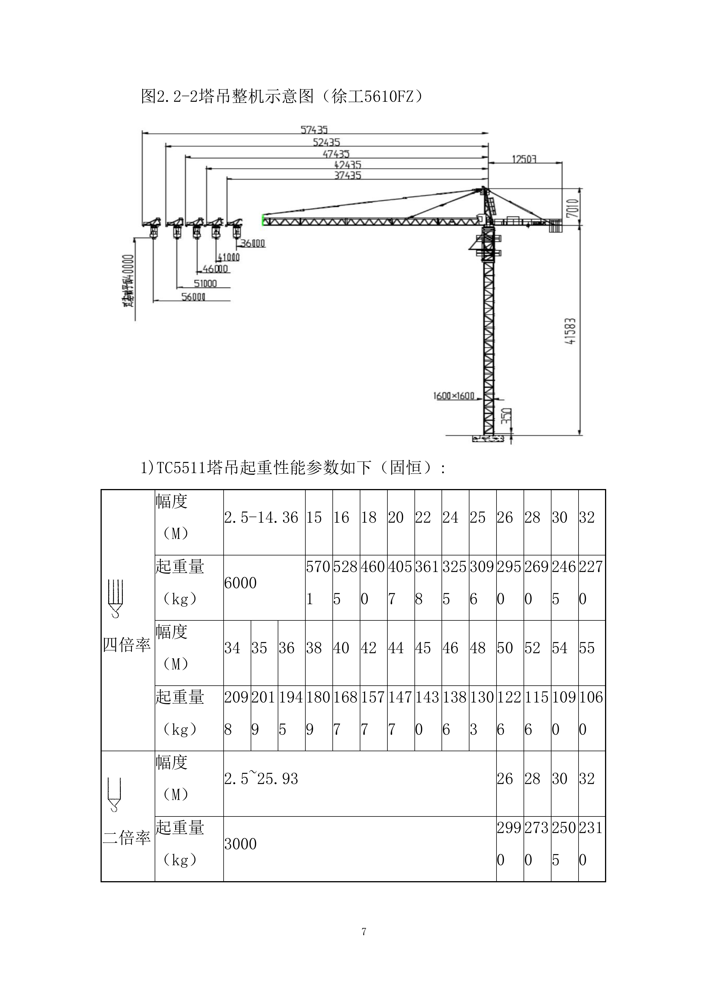
综合保税区公寓塔吊拆卸专项施工 投标 方案 目 录 第一章 编制依据 3 第二章 工程概况 5 一、 工程建设概况 5 二、 塔吊拆除概况 6 三、 塔吊拆除施工部署 13 四、 塔吊拆除施工条件 13 第三章 主要部件的重量和吊点位置 15 第四章 塔吊拆除施工安排 16 一、 项目管理组织 16 二、 总包管理人员及职责分工 17 三、 分包管理人员及职责分工 21 四、 施工管理目标 22 五、 各项资源供应方式 22 六、 工程施工重点和难点分析及应对措施 24 第五章 塔吊拆除施工进度计划 25 第六章 施工准备及资源配置计划 26 一、 技术资料准备 26 二、 施工现场准备 27 三、 资源配置计划 28 第七章 塔吊拆除工艺 30 一、 降标准节以及拆除附着 30 二、 拆除立面、平面图 34 第八章 施工进度计划及保证措施 35 一、 施工进度计划 35 二、 工期保证措施 35 第九章 施工质量保证措施 37 第十章 绿色文明施工措施及要求 40 一、 重要环境因素及控制措施 40 二、 文明施工措施 40 第十一章 重大危险源和安全技术措施 42 一、 安全管理体系 42 二、 危险源辨识 43 三、 安全技术措施 44 四、 安全事故应急救援预案 46 第十二章 主要零部件吊装计算 51 一、 塔吊零部件拆除注意事项 51 二、 钢丝绳选择 52 三、 塔吊吊索安全计算 52 四、 吊装稳定性计算 56 第十三章 重大危险源辨识与控制措施 57 第一章 编制依据 序号 类 别 文件名称 编 号 1 国家行政文件 建设工程安全生产条例 2 建筑起重机安全监督管理规定 3 中华人民共和国安全生产法 4 特种设备安全监察条例 5 建设工程安全生产管理条例 6 危险性较大的分部分项工程安全管理办法 7 国家行业规范 塔式起重机安装与拆卸规则 8 塔式起重机安全规程 9 重要用途钢丝绳 10 建筑施工高处作业安全技术规范 11 建筑施工作业劳动防护用品配备及使用标准 12 建筑施工起重吊装工程安全技术规范 13 施工现场临时用电安全技术规范 15 混凝土结构工程施工质量验收规范 16 设计文件 建筑设计图 17 TC5511/5610FZ 塔式起重机使用说明书 18 企业管理文件 中建八局标准化管理手册 / 第二章 工程概况 一、 工程建设概况 工程名称 工程性质 公共建筑 建设规模 工程地址 总占地 面积 5210.2㎡ 总建筑面积 建设单位 项目承包 范围 设计图纸范围内建筑、装饰、安装工程及总包单位竣工验收以前全部内容。 设计单位 主要工程 土石方工程、地基与基础工程、主体工程、电气工程、给排水工程、采暖供热工程、通风空调工程、装饰装修工程、防水工程、门窗工程、消防工程等 勘察单位 合同要求 质量 合格 监理单位 工期 3年 总承包 单位 安全 无重大安全事故 工程主要功能或用途 公寓 二、 塔吊拆除概况 按照现场实际情况, 现计划对TC5511/5610FZ塔吊进行 拆除 ,其中TC5511塔机 1 台,5610FZ塔机 1 台, 起重臂长 55/56 米,首先降标准 节,(超出独立高度先降至独立高度,无附着不用降节),然后使用SCT550T6汽车吊作为辅助设备拆除,为了能够安全顺利的完成安装任务,特制定了此安装专项施工方案。 TC5511/5610FZ 塔吊起重性能技术参数如下: 图2. 2- 1塔吊 整机 示意图(固恒 TC5511 ) 图2. 2- 2塔吊 整机 示意图(徐工 5610FZ ) 1 )TC5511塔吊起重性能参数如下(固恒): 四倍率 幅度(M) 2.5-14. 36 15 16 18 20 22 24 25 26 28 30 32 起重量( kg ) 6000 5701 5285 4600 4057 3618 3255 3096 2950 2690 2465 2270 幅度(M) 34 35 36 38 40 42 44 45 46 48 50 52 54 55 起重量( kg ) 2098 2019 1945 1809 1687 1577 1477 1430 1386 1303 1226 1156 1090 1060 二倍率 幅度(M) 2.5~25.93 26 28 30 32 起重量( kg ) 3000 2990 2730 2505 2310 幅度(M) 34 35 36 38 40 42 44 45 46 48 50 52 54 55 起重量( kg ) 2138 2059 1985 1849 1727 1617 1517 1470 1426 1343 1266 1196 1130 1100 备 注 性能表中的起重量包含吊钩以下吊索及其它附加取物装置 TC5015(50m)臂起重特性表(平衡重12500kg)/TC4517(45m)臂起重特性表(平衡重11000kg) 四倍率 幅度(M) 2.5~16.10 18 20 22 24 26 28 30 32 32 起重量( kg ) 6000 5270 4658 4161 3751 3406 3112 2859 2638 2270 幅度(M) 34 35 36 38 40 42 44 45 46 48 50 起重量( kg ) 2444 2355 2272 2118 1980 1856 1734 1700 1640 1546 1460 二倍率 幅度(M) 2.5~29.17 30 32 起重量( kg ) 3000 2899 2678 幅度(M) 34 35 36 38 40 42 44 45 46 48 50 起重量( kg ) 2484 2395 2312 2158 2020 1896 1783 1730 1680 1586 1500 备 注 性能表中的起重量包含吊钩以下吊索及其它附加取物装置 起重机技术性能 机构工作级别 起升机构 M5 回转机构 M4 牵引机构 M4 起升高度 ( m ) 倍率 独立(固定) 附着 备 注 a=2 40 140 a=4 40 7 0 最大起重量( t ) 6 幅度( m ) 最大幅度( m ) 45 50 55 最小幅度( m ) 2 .5 方案一 三 起 速 升 电 机 机 构 起 升 性 能 倍率 a=2 a=4 起重量 (t) 3 3 1. 3 6 6 2.6 速度 m/min 9 40 80 4.5 20 40 电 机 参 数 型号 YZTD 200L-2/4/20-24/24/5.4kW(YZTD225M2) 速度r/min 2820/1425/245r/min(1460/730/150) 方案二 绕 起 线 升 电 机 机 构 起 升 性 能 倍率 a=2 a=4 起重量 (t) 1 . 3 3 2.6 6 速度 m/m in 80 40 40 20 电机参数 型号 YZRDWb225M. - 4 / 8 - 24/ 24KW 速度r/min 1400/710r/min带制动器 回转机构 (双套) 转速 电机型号 功率 转速 0.6 r/min Y ZR 132M2-6 2× 3.7 KW 908 r/min 牵引机构 速度 电机型号 功率 转速 42/21m/min YDEJ1 3 2S-4/ 8-B5 3 . 3 / 2.2 KW 1380/710r/min 顶升机构 速度 电机型号 功率 转速 0.5 m /min Y132S-4 5.5 KW 1440r/min 工作压力 < 20MP a 平衡重 臂 长(m) 重 量(吨) 45 11 50 12.5 55 13.2 总 功 率 36 . 6KW(不包括顶升电机) 电源 380V 50Hz 工作温度 -20℃-40℃ 工作时塔机顶部工作风速 20m/s 安装时塔机顶部工作风速 12m/s 5610FZ塔吊起重性能参数如下( 徐工 ): 三、 塔吊拆除施工部署 塔吊拆除平面布置图 四、 塔吊拆除施工条件 塔吊拆除前应向当地监管部门办理拆除告知手续,并经过监管部门审核同意拆除后, 方可进行塔吊拆除作业。 编制拆除方案经过产权单位以及工程项目部审批并通过。在拆除前,组织所有参加作业的相关人员认真学习本塔吊拆除方案以及说明书,熟悉塔吊技术参数和拆除工艺流程。拆除人员入场后由项目部对拆除人员开展安全教育工作,并对拆除人员进行安全技术交底,交底覆盖率 100%。 提前查看当地天气预报,在拆除期间如有 4 级以上大风、雷雨、雪等恶劣天气应提前做好防范措施,防止塔吊拆除过程突遇大风雷雨雪天气。 拆除前需要确保拆除现场清理充分,塔吊拆除所需要的物资工具准备充分。 第三章 主要部件的重量和吊点位置 TC5511/5610FZ 零部件重量及参数( 55/56 m) 拆塔需要1台辅助汽车起重机或具有相近性能的其它起重设备,其部件重量和性能如下表。 TC5511 部件号 R( m ) h( m ) H ( M ) 部件质量( kg ) 备注 1 6-7 16.8 18 4386 2 14.5 15 2360+920 3 15 17 4810 4 顶升用 920 顶升 5 26 28 1460 6 21 23 2430 7 22 24 1780 8 22 24 6744 ★ 9 24 26 2400 第四章 塔吊拆除施工安排 一、 项目管理组织 1 总包组织实施机构 技 术 部 由于塔吊安拆工程为危险性较大项目,本工程组建公司总承包管理层,调整项目的全面施工。为确保塔吊安拆工程的安全性与高质量,项目部成立以项目经理及项目执行经理为组长, 以项目生产经理、项目技术负责人为副组长,各施工层管理人员为组员的管理机构,分层落实方案及制定的措施,提供有力的组织及质量保证体系,确保工程的施工质量。施工组织机构如下: 二、 总包管理人员及职责分工 序号 管理职务 姓名 管理职责和权限 1 项目经理 1、对项目的质量、安全、成本、进度等全面负责。 2、明确项目的各项管理目标并分解落实 3、明确项目管理机构组织形式,参与配置项目其他管理人员,明确 相关人员的职责和权限。负责对项目管理人员的考核考评工作。 4、组织项目管理和产品实现过程的策划。如:项目管理策划与实施 计划、施工组织设计、关键施工方案、总平面组织、总计划等。 5、全面负责项目过程管理,保证完成项目各项管理目标。 6、协调好与工程有关的各方关系,并有效沟通。 2 项目总工程师 1、负责项目技术质量的全面管理工作。 2、主持编制施工组织总设计、专项施工方案等策划文件,组织专家 对策划文件进行论证。 3、组织策划并实施项目双优化,负责与设计、建设单位的技术洽商。 4、组织项目各项验收管理工作。负责技术质量工作的相关方沟通工 作。 5、组织实施项目危险源辨识、风险评价;项目环境因素识别、评价 及控制策划 6、负责牵头编制总进度计划。 3 生产经理 1、是项目工期管理直接责任人。各相关方施工协调现场负责人。 2、负责项目年度计划、月周计划的编制与实施。负责施工资源计划 编制及落实各项施工资源的计划与进出场调配工作。 3、负责现场平面管理的实施与运行。负责项目标准化设施管理。 4、负责项目分包管理。 5、负责现场周边环境的管理与协调。 6、负责项目安全施工、绿色施工及环境管理。 7、主持编制总包管理方案,组织落实总包管理工作。 4 安装部门经理 1、项目的安装专业负责人。 2、按分工参与各类策划编制,编制必要的作业指导书,进行专业技 术交底。按分工做好相关文件和记录的控制。 3、负责安装专业的施工现场及质量、安全管理。负责项目各项策划 关于负责专业的落实。 4、参与安装的成本管理工作,及时沟通有关信息。 5 商务 工程师 1、负责项目层级合同交底。 2、参与项目商务策划,并对项目履约情况、商务策划实施全过程管 理。 3、负责项目结算策划的编制和实施;全面负责项目总分包(预)结算 工作。 4、负责项目成本全过程管理。 5、负责总包签证索赔费用的谈判、确认,分包签证费用的审核。 6 安全 工程师 1、组织项目的职业健康安全和环境管理教育。 2、负责项目相关职业健康安全/环境管理法律法规的识别、收集和 提供。 3、组织项目职业健康安全/环境管理检查,定期进行监测,发现问 题下达整改通知单,并对整改情况进行验证。 4、组织进行环境及职业健康安全的合规性评价。 5、负责安全管理的相关方沟通体系的建立与维护。 7 物资经理 1、负责物资现场管理及物资采购计划的落实; 2、做好进场物资的进场记录,会同分包单位共同验收进场物资的质 量和数量,督促供应商及时提交合规有效的质量证明资料; 3、做好现场物资保管、堆放和标识工作; 4、对分包单位领用的物资做好交接工作,账目齐全、及时、有效; 5、监督检查分包商自行采购物资的质量情况; 6、协助材料工程师做好项目材料和项目资产的盘点工作,监督分包 单位节约使用材料。 8 技术工程师 1、按照分工参与施工组织设计、专项施工方案等策划、进行项目危 险源及环境因素辨识、风险评价及控制策划。 2、根据分工负责工程记录和档案管理。 3、协助项目总工程师进行施工过程的技术管理,参与实施施工过程 的设计。按分工进行深化设计。 9 施工专业工程师 1、负责本专业的现场施工全过程管理。 2、负责本专业的计划、安全、质量、成本控制。 3、参与计划编制,参与资源组织。 10 测量工程师 1、负责项目测量放线工作。 2、参与编写并实施现场定位放线测量方案。 3、负责标高引测点的布设和复核。负责楼层标高控制点的检查及验 收。 4、负责建筑物标高控制、建筑物垂直度控制。负责基坑边坡的沉降 观测、建筑物的沉降观测。 三、 分包管理人员及职责分工 序号 管理职务 姓名 职称(资质) 职责和权限 1 总工 工程师 对安拆方案进行审批,复核塔吊拆除技术条件 2 技术员 助理工程师 编制可行塔吊拆除专项施工方案,解决安拆技术问 题 3 项目经理 助理工程师 塔吊拆除告知,现场准备,做好与项目部沟通工作 4 安拆经理 助理工程师 及时对安拆人员进行组织,做好与施工部的沟通 5 材料员 助理工程师 按照施工部计划要求,提前联系准备好塔吊拆除所 需物资及设备 6 安全员 助理工程师 对塔吊拆除过程有效监督,及时制止违规操作 四、 施工管理目标 项目管理目标名称 单 台 目 标 值 工 期 6 日历日 质量目标 塔吊零部件拆除后验收齐全,符合规范塔吊拆除相关规范要求 安全目标 杜绝死亡、重伤事故、轻伤事故 节能目标 选用符合国家规定的能耗低、效率高的机械设备,材料及设备在当地采购 文明环保施工 有毒有害废物分类率到达 100%,施工噪声<65dB; 塔吊拆除后对将塔吊机构以及零部件上的杂物清理干净 五、 各项资源供应方式 4.1 劳务资源安排一览表 施工项目 名称 专业施工队 名称 资质 要求 开始施工 时间 施工工期 分包 方式 分包商 选择方式 责任人 塔吊拆除 4.2 大型机械设备采购供应安排一览表 机械设备名称 拟选供应商 提供方式 要求进场时间 计划出场时间 责任人 SCT550T6 汽车吊 4.3 施工周转工具一览表 周转工具名称 估计数量 提供方式 要求进场时间 计划出场时间 责任人 塔吊专用工具 1 自有 电气焊 1 自有 麻绳 2 自有 测量仪器 1 自有 电工仪表 1 自有 对讲机 5 自有 梅花扳手 1 自有 开口扳手 1 自有 冲子 4 自有 内六角扳手 1 自有 管子钳扳手 2 自有 电工工具 1 自有 破坏钳 1 自有 链条葫芦 2 自有 链条葫芦 2 自有 大锤 3 自有 大锤 3 自有 手锤 2 自有 钢丝绳吊索 2 自有 钢丝绳吊索 2 自有 钢丝绳吊索 2 自有 钢丝绳吊索 4 自有 钢丝绳吊索 4 自有 六、 工程施工重点和难点分析及应对措施 序号 重点和难 点 具体分析 应对措施 责任人 1 塔吊拆除 塔吊拆除属于危险性较大工程,对塔吊拆除过程有很 高的技术及安全操作要求 塔吊拆除各机构顺序正确,各机构吊点正确,使用吊装机械以及吊索和卸扣符合规范 要求,塔吊拆除划分好安全作业区域。 第五章 塔吊拆除施工进度计划 现场 TC5511/5610FZ 塔吊计划 xx 年 12 月进行拆除,单台拆除施工日期为 6 天。 序号 施工项目 计划完成时间 备注 1 人员入场教育、施工准备、降节 4 天 无外界因素影响 2 解体装车 2 天 无外界因素影响 第六章 施工准备及资源配置计划 一、 技术资料准备 表 6-1 技术文件准备计划一览表 序 号 文件名称 文件编号 配备数量 持有人 1 塔式起重机安装与拆卸规则 2 塔式起重机安全规程 3 重要用途钢丝绳 4 建筑施工高处作业安全技术规范 5 建筑施工作业劳动防护用品配备及使用标准 6 建筑施工起重吊装工程安全技术规范 7 施工现场临时用电安全技术规范 8 危险性较大分部分项工程管理规定 9 特种作业人员名单及证书复印件 10 安拆告知资料 11 塔吊拆除使用说明书 12 建筑、结构施工图纸 13 本工程施工组织设计 14 中国建筑第八工程局标准化手册 表 6-2 施工方案编制计划表 序号 施工方案名称 编制单位 负责人 审批 完成时间 1 TC5511/5610FZ 塔吊拆除专项施工方案 2 安全应急救援预案 分包技术员负责编制专项方案,报公司总工程师进行审批,进行项目评审,审批合格后上报总包单位,待审批通过后方可实施。 项目安全员组织现场分包单位安全员、技术员、塔吊拆除施工人员进行专项方案交底。 施工技术人员熟悉图纸,根据结构特点、施工进度要求、物资供应,施工工艺等情况确定 具体塔吊拆除施工工艺,并编制详细的施工方案,指导施工。 施工前,对塔吊安拆工人进行书面技术、安全交底及班前讲话。 二、 施工现场准备 表 6-3 施工设施准备计划 序号 设施名称 种类 数量 规模 完成时间 责任人 1 塔吊 1 2 TC5511/5610FZ 2 运输车 1 8 13.5m 3 汽车吊 1 1 50 吨 满足汽车吊、货车通行需求。 场地准备:塔吊出场前,必须保证车辆行走路线畅通,塔吊运输采用 13.5 米货车,清理 好工地道路,以方便 13.5 米货车和汽车吊进场,对拆除现场进行清理,以便有足够空间支车, 拼装塔吊零部件。 确保支车位置地基承载力以及支车位置平坦,以保证汽车吊安全作业,完成部件周转及安装。 三、 资源配置计划 人员准备 序号 姓名 职务 职责 备注 1 总工 对安拆方案进行审批,复核塔吊拆除技术条件 2 安全员 负责塔吊拆除过程中的安全监督工作,及时对拆除 过程中存在的违规现象进行制止 3 安拆现场负责 人 监督施工人员严格按方案进行操作,严格监督现场 人员按照作业规范进行施工,统筹人员分配管理 4 现场技术负责 人 拆除过程中技术指导及交底,解决安拆技术问题 项目管理部设专业安全员共 2 人,持证上岗,对塔吊的拆除进行检查和管理; 设安全监督检察人员 2 名,持证上岗,确保塔吊的拆除和使用符合方案要求,监督检查工人各项安全操作项目; 塔吊拆除工须体检合格并经《特种作业人员安全技术管理规则》考核和安全教育培训,考试合格后持证上岗。 材料机具准备 辅助设备必须性能良好、无故障,安全装置、制动装置齐全且动作灵敏可靠。 各工种作业用工器具必须经过检查校验符合安全和质量要求。 手拉葫芦、卸扣等必须经过检验达到安全使用要求且标识清晰,并在使用前检查确认符合使用要求后方可使用。 电动工器具应经过检验合格并经漏电保护器。 钢丝绳的安全系数不小于 6 倍,且经过检查完好无损伤,符合安全要求方可使用。 作业中使用的安全带、安全绳及保险绳应经检验合格,严防安全设施不安全。 第七章 塔吊拆除工艺 一、 降标准节以及拆除附着 降节注意事项 降节作业必须严格按照降节程序操作,塔吊降节过程必须保证塔吊前后力矩处于平衡状态;并紧紧刹住回转制动,严禁旋转及其塔作业。 应进行空缸试动作,检查各管接头是否紧固严密,不准有漏油、滑缸、颤缸现象。 接好顶升系统电源以后试动作检查高低压油路是否正常,转动方向是否为顺时针方向。 溢流阀压力为出厂时已经调整好的压力值,作业人员不得随意调整。 顶升过程必须由有操作经验的专业人员进行操作,操作过程必须仔细观察,确保各结构连接牢固。 只允许在四级风(7.8 米/秒)以下进行降节作业。如在进行降节过程中,突遇风力大增,须采取紧急处理措施,立即停止作业,并紧固销轴。 降节作业应在白天进行,如需要夜间作业时,必须备有充分的照明设备。 降节前必须预先解开以前固定的电缆线,使电缆线自由下降,并盘好电缆线。 在降节过程中发生故障,需停车检查,在排除故障前不得作业。 降节程序 1.a 降节以前首先接好顶升系统线路,并启动泵站检查确保泵站电机旋转方向正确(顺时针);然后吊起一节标准节重量使变幅小车跑至理论配平位置处并将塔吊起重臂转到塔吊正前方21 米,并利用回转制动将回转上部锁死,然后打掉回转下支座与塔身标准节连接的 8 个销轴(扶冲子及销轴人员要拿稳,防止销轴高空坠落,以及扶好冲子,防止崩伤),确认顶升系统正常以后操纵液压泵站操纵杆使油缸伸出使顶升横梁上挂靴挂到标准节顶升耳座内,确保挂牢以后点动操作将油泵操纵杆推到“向上顶升”方向使油缸伸出将塔吊回转以上部分慢慢顶起,直到回转下支座支腿刚刚离开塔身标准节主角钢 10mm 为止。检查塔机是否平衡,必要时可移动牵引小车进行配平,可通过检查回转下支座支腿主角钢与塔身主角钢是否在一条垂直线上,从而找到塔机前后力矩平衡时牵引小车的准确位置。配平以后继续操纵顶升系统使油缸伸出,直到回转下支座支腿离开塔身标准节耳板 10cm,将加节的引进小车用四个高强度螺栓连接在应拆卸的标准节上,螺栓一定要确定不松动,并将该节标准节与下节标准节的连接销轴拆下(注意:打销轴时要有人扶住销轴,确保不能坠落),拆开爬梯,然后继续操作顶升,直至可以将标准节正常推出为止,将顶升小车和标准节一起慢慢的推出套架,停放在引进梁上,然后开动顶升系统, 将套架下降,使回转落在下一标准节的鱼尾板内,并插入保险销,(油缸相应的重复动作 3 次, 换缸时要有专门两人扶住顶升横梁,伸出油缸时要确保套架上的联接座牢固挂在顶升耳座内)。 2.启动塔吊将配平标准节放在地面上并将挂在引进梁上的标准节吊下,完成一节的降节工作,重复以上动作。 7.2 塔吊拆除施工工艺 TC5511/5610FZ 拆除顺序 根据现场情况最终确定使用 50吨汽车吊进行拆除 拆除顺序:降节 (至独立高度) →拆除钢丝绳→拆除配重、起重臂→剩余配重平衡臂→拆除塔帽→拆除回转→拆除套架→拆除标准节、基础节→打包、装车 TC5511/5610FZ 拆除工艺 拆除起升钢丝绳:将变幅小车跑到起重臂前段,等到离臂端 3 米左右时,变幅小车停住;然后将变幅钢丝绳和起升主钢丝绳用“U”型卡卡主(确保两个钢丝绳卡的牢固);变幅小车往前走一米,将变幅小车停住(此时起重臂前段人员和驾驶室内操作人员用对讲机沟通好,人员站在起重臂上时严禁动变幅小车);将起重臂前段固定主钢丝绳楔头的销轴拆下;收回变幅小车将吊钩放在地下,将固定变幅钢丝绳和起升住钢丝绳的“U”型卡取下;起升塔吊将主钢丝绳收到正和适合拆除起重臂时穿绳长度即可,并将小车固定在塔吊起重臂根部。 配重拆除:按照方案位置支好 50吨汽车吊,用 2 根 6×37、φ30×8m 钢丝绳将远离卷扬机位置的 2 块配重依次拆除,留 1 块配重。 拆除起重臂:移动重新支好 50吨汽车吊,(1)首先穿绕拆除拉杆用起升钢丝绳,把卷扬钢丝绳经过塔头绕在起重臂拉杆头的滑轮上,然后固定在塔头楔套上;然后利用 4 根 6×37、φ 30 ×8m 钢丝绳拴好吊点以后,塔吊起升拉紧钢丝绳,汽车吊慢慢起钩将起重臂前部抬高一些,使拉杆处于松弛状态,将拉杆与塔帽上的拉杆连接销子打下,塔吊缓慢下钩将拉杆放在起重臂上并固定牢固;汽车吊慢慢放平起重...
综合保税区公寓塔吊拆卸专项施工投标方案.docx
下载提示

1.本文档仅提供部分内容试读;

2.支付并下载文件,享受无限制查看;

3.本网站所提供的标准文本仅供个人学习、研究之用,未经授权,严禁复制、发行、汇编、翻译或网络传播等,侵权必究;

4.左侧添加客服微信获取帮助;

5.本文为word版本,可以直接复制编辑使用。


这个人很懒,什么都没留下
个人认证 查看用户
该文档于 上传
推荐文档
×
精品标书制作
百人专家团队
擅长领域:
工程标 服务标 采购标
16852
已服务主
2892
中标量
1765
平台标师
扫码添加客服
客服二维码
咨询热线:192 3288 5147
公众号
微信客服
客服